Objekt Informationen

Lessingplatz 3 in 09130 Chemnitz


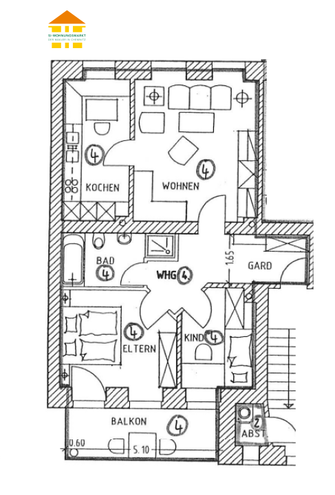
Beschreibung

Lessingplatz 3 - WE 04 - 3-Raum-Wohnung in 09130 Chemnitz - Verkauf

Zum Kauf angeboten wird eine modern renovierte und vermietete 3-Raum-Wohnung mit Stellplatz auf dem Chemnitzer Sonnenberg! Das denkmalgeschützte Mehrfamilienhaus befindet sich direkt am Lessingplatz und wurde 1912 erbaut sowie im Jahr 1999 umfangreich saniert. 


Folgende Merkmale kennzeichnen die Einheit:


  • ansprechend gestalteter Grundriss /
  • großzügiges Wohnzimmer mit Zugang zur Küche /
  • Küche mit Platz für einen Essbereich /
  • Balkon über beide Schlafzimmer erreichbar /
  • beide Schlafzimmer sowie Balkon mit hofseitiger Ausrichtung /
  • Kinderzimmer auch ideal nutzbar als Arbeitszimmer /
  • Badezimmer mit Wanne und Dusche /
  • integrierte Deckenspots in Flur und Bad /
  • neuer, moderner Vinylboden /
  • stylische Strukturtapete /
  • Glasfaseranschluss /
  • SNR am zugeordneten Stellplatz im Innenhof /
  • abgeschlossenes Kellerabteil /
  • zusätzlicher Abstellraum auf halber Etage inkl. WM-Anschluss /
  • Einrichtungen des täglichen Bedarfs in naher Umgebung /
  • öffentliche Verkehrsmittel zu Fuß gut erreichbar /


Die Wohnung ist seit dem 01.09.2025 vermietet und erzielt eine Nettokaltmiete von 4.752,00€ pro Jahr. Der zugehörige Stellplatz ist aktuell nicht vermietet. Aus unserer Sicht ist bei einer Neuvermietung eine Soll-Miete in Höhe von 300,00€ p.a. realistisch.




Objekt-Informationen
Etage erstes Obergeschoss (1. OG)
Räume 3 Raum Wohnung
Verkaufpreis: 82.000,00 €
Provision: 3,57% inkl. MwSt. jedoch mindestens 3.570,00€ inkl. MwSt. Euro
Grösse / qm 72,00
Parken Aussenstellplatz (3000 Euro)
Energieausweis
Erstellungsdatum nicht benötigt
Ausweistyp ---
Energieverbrauch kWh/qm*a
Effizienzklasse ---
Energieträger Fernwärme
Baujahr 1889
In der näheren Umgebung (1km)
Geldautomat x8
Bank x2
Bar x6
Cafe x10
Autovermietung x1
Autowäsche x1
Zahnarzt x5
Bibliothek x1
öffentliche Parkplätze x1
Apotheke x6
Poststation x2
Restaurant x26
Schule x1
Allgemeinmediziner / Ärtzte x15
Ladestation (E-Car) x7
Die Angaben und Unterlagen zum Objekt basieren auf Informationen Dritter, die der Firma SI Wohnungsmarkt erteilt wurden. Für deren Richtig- und Vollständigkeit kann jedoch keine Haftung übernommen werden.
Mitarbeiter kontaktieren

Verkaufs-Immobilie12491

verfügbar ab: sofort

  • 72,00
  • 3 Raum Wohnung
  • 72,00 qm
82.000,00 €
  • Lessingplatz 3 in 09130 Chemnitz

Get In Touch