Casparistraße 3 in 09126 Chemnitz
Beschreibung
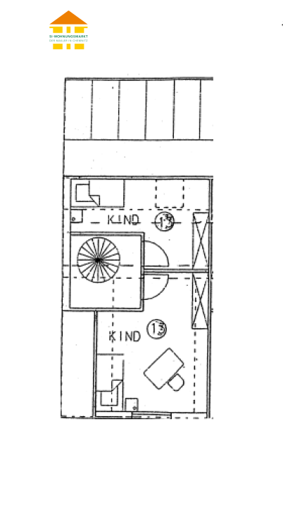
Casparistraße 3 - WE 13 - 3,5-Raum-Wohnung in 09126 Chemnitz - Verkauf
Zum Kauf angeboten wird eine vermietete 3,5-Raum-Maisonette-Wohnung im Chemnitzer Lutherviertel. Das denkmalgeschützte Mehrfamilienhaus befindet sich in einer ruhigen Seitenstraße und wurde 1910 erbaut sowie im Jahr 1999 umfangreich saniert.
Folgende Merkmale kennzeichnen die Einheit:
- ansprechend gestalteter Grundriss /
- Flur mit Platz für eine Garderobe /
- großzügiges Wohnzimmer mit offenem Raumkonzept /
- hofseitiger Balkon über das Wohnzimmer erreichbar /
- Küche mit Blick in den Innenhof /
- geräumiges Schlafzimmer /
- Badezimmer mit Dusche /
- stylische Wendeltreppe /
- zwei gemütliche Kinderzimmer im Spitzboden /
- abgeschlossenes Kellerabteil /
- Einrichtungen des täglichen Bedarfs in naher Umgebung /
- öffentliche Verkehrsmittel zu Fuß gut erreichbar /
Die Wohnung ist seit dem 01.12.2023 für 5.820,00€ nettokalt p.a. vermietet.
Den Mietern wurde eine Mieterhöhung zugestellt.
| Objekt-Informationen | |
|---|---|
| Etage | Dachgeschoss (DG) |
| Räume | 3,5 Raum Wohnung |
| Verkaufpreis: | 85.000,00 € |
| Provision: | 3,57% inkl. MwSt. jedoch mindestens 3.570,00€ inkl. MwSt. Euro |
| Grösse / qm | 87,58 |
| Energieausweis | |
|---|---|
| Erstellungsdatum | ab 01.05.2014 |
| Ausweistyp | Verbrauchsausweis |
| Energieverbrauch | 96,9 kWh/qm*a |
| Effizienzklasse | C (<= 100 kWh/m².a) |
| Energieträger | Gas |
| Baujahr | 1912 |
| In der näheren Umgebung (1km) | |
|---|---|
| Geldautomat | x2 |
| Bank | x1 |
| Bar | x4 |
| Cafe | x4 |
| Autovermietung | x1 |
| Autowäsche | x1 |
| Zahnarzt | x3 |
| öffentliche Parkplätze | x3 |
| Apotheke | x2 |
| Poststation | x1 |
| Restaurant | x17 |
| Allgemeinmediziner / Ärtzte | x8 |
| Ladestation (E-Car) | x6 |

Mitarbeiter kontaktieren
-
Casparistraße 3 in 09126 Chemnitz
