Hilbersdorfer Straße 42 in 09131 Chemnitz
Beschreibung
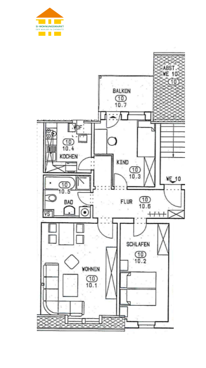
Hilbersdorfer Straße 42 - WE 10 -3-Raum-Wohnung in 09131 Chemnitz
Zur Miete angeboten wird eine schön geschnittene 3-Raum-Wohnung im beliebten Hilbersdorf.
Folgende Merkmale kennzeichnen die Wohnung:
- praktischer Grundriss - keine Durchgangszimmer /
- großzügiges Wohnzimmer /
- maßangefertigte Einbauküche inkl. allen Geräten /
- Kinder-/Arbeitszimmer mit Zugang zum Balkon /
- Schlafzimmer von angenehmer Größe /
- Bad mit Wanne, Dusche und WM-Anschluss /
- zeitloser Laminatboden /
- abgeschlossenes Kellerabteil /
- zusätzlicher Abstellraum auf halber Etage /
- begrünter Innenhof zur gemeinschaftlichen Nutzung /
- Einrichtungen des täglichen Bedarfs in naher Umgebung /
- öffentliche Verkehrsmittel zu Fuß gut erreichbar /
Über den Standort
Objekt-Informationen
Energieausweis

Mitarbeiter kontaktieren
-
Hilbersdorfer Straße 42 in 09131 Chemnitz
Pendelzeit berechnen
Wie lange brauche ich zur Arbeit?