Reichenhainer Straße 20 in 09126 Chemnitz
Beschreibung
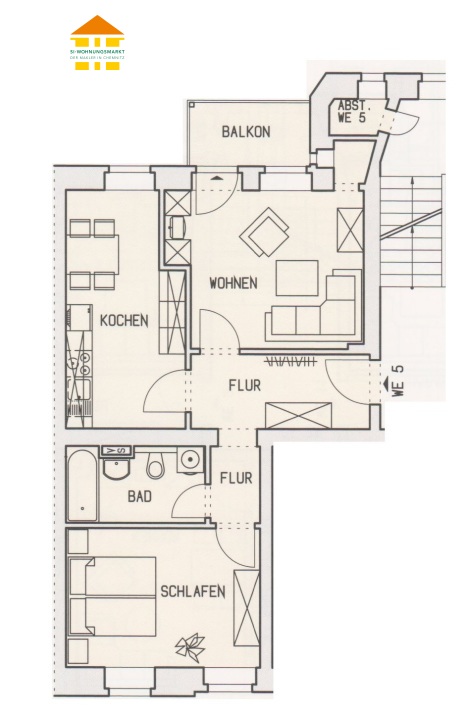
Reichenhainer Straße 20 - WE 05 - 2-Raum-Wohnung in 09126 Chemnitz
Zur Miete angeboten wird eine 2-Raum-Wohnung in Bernsdorf.
Folgende Merkmale kennzeichnen die Wohnung:
- praktischer Grundriss - keine Durchgangszimmer /
- Wohnzimmer mit Zugang zum Balkon /
- Küche mit Platz für einen Essbereich /
- Balkon mit hofseitiger Ausrichtung /
- Schlafzimmer von angenehmer Größe /
- Bad mit Wanne und WM-Anschluss /
- zeitloser Laminatboden /
- Stellplatz zugeordnet /
- abgeschlossenes Kellerabteil /
- zusätzlicher Abstellraum auf halber Etage /
- begrünter Innenhof zur gemeinschaftlichen Nutzung /
- Einrichtungen des täglichen Bedarfs in naher Umgebung /
- öffentliche Verkehrsmittel zu Fuß gut erreichbar /
Über den Standort
Diese Immobilie befindet sich im Studentenviertel von Chemnitz - Bernsdorf. Der Hauptteil der Technischen Universität erstreckt sich hier entlang der Reichenhainer Straße. Die drittgrößte sächsische Universität zieht mit ihren zahlreichen Einrichtungen jährlich tausende Studenten in den beliebten Chemnitzer Stadtteil. Die ideal ausgebaute Infrastruktur und die Nähe zum Zentrum lassen das jugendlich geprägte Bernsdorf auch für Familien und Senioren attraktiv erscheinen. Bernsdorf verfügt über zahlreiche Restaurants, Bars, Supermärkte, Schulen, Kindertagesstätten und sonstige Einrichtungen.
Objekt-Informationen
Etage
erstes Obergeschoss (1. OG)
Räume
2 Raum Wohnung
Kaltmiete
332 € (5,50/m²)
Nebenkosten
145,00 € (2,40/m²)
Warmmiete
477,00 €
Wohnfläche
60,30 m²
Kaution
664,00 €
Parken
Aussenstellplatz (25 €/Monat)
Mietwohnung
Verfügbar
01.07.2026
60,30 m²
Wohnfläche
2 Raum Wohnung
Zimmer
1. OG.
Etage
Warmmiete
477,00 €
Energieausweis
Endenergieverbrauch
91,6 kWh/m²a
Erstellungsdatum
nicht benötigt
Ausweistyp
---
Energieträger
keine Angabe
Baujahr

Mitarbeiter kontaktieren
-
Reichenhainer Straße 20 in 09126 Chemnitz
Pendelzeit berechnen
Wie lange brauche ich zur Arbeit?