Markusstraße 31 in 09130 Chemnitz
Beschreibung
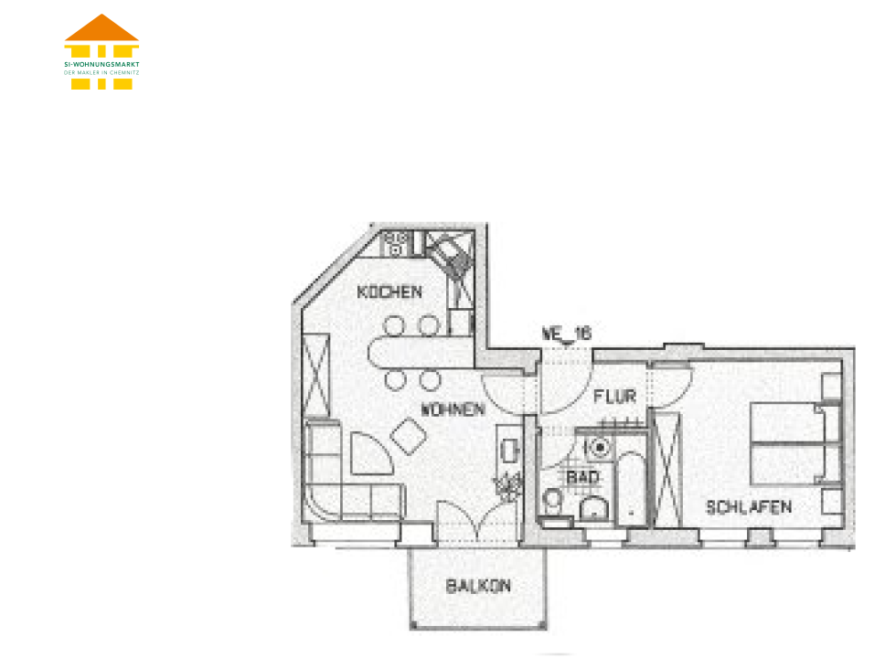
Markusstraße 31 HH - WE 16 - 2-Raum-Wohnung in 09130 Chemnitz
Zur Miete angeboten wird eine 2-Raum-Wohnung in Zentrumsnähe.
Folgende Merkmale kennzeichnen die Wohnung:
- praktischer Grundriss - keine Durchgangszimmer /
- Wohnzimmer mit Zugang zum Balkon /
- offene Wohnküche mit Essbereich /
- Balkon mit hofseitiger Ausrichtung /
- Schlafzimmer von angenehmer Größe /
- Tageslichtbad mit Wanne und WM-Anschluss /
- zeitloser Laminatboden /
- Stellplatz zugeordnet /
- Abstellraum auf Halber Etage /
- begrünter Innenhof zur gemeinschaftlichen Nutzung /
- Einrichtungen des täglichen Bedarfs in naher Umgebung /
- öffentliche Verkehrsmittel zu Fuß gut erreichbar /
| Objekt-Informationen | |
|---|---|
| Etage | Erdgeschoss (EG) |
| Räume | 2 Raum Wohnung |
| Kaltmiete | 280 Euro (5,34 / qm) |
| Nebenkosten | 136,00 Euro (2,60 / qm) |
| Warmmiete | 416,00 Euro |
| Grösse / qm | 52,40 |
| Kaution | 840,00 Euro |
| Parken | Aussenstellplatz (25 Euro / Monat) |
| Energieausweis | |
|---|---|
| Erstellungsdatum | ab 01.05.2014 |
| Ausweistyp | Verbrauchsausweis |
| Energieverbrauch | 85,00 kWh/qm*a |
| Effizienzklasse | D (<= 150 kWh/m².a) |
| Energieträger | Gas |
| Baujahr | 1910 |
| In der näheren Umgebung (1km) | |
|---|---|
| Geldautomat | x9 |
| Bank | x5 |
| Bar | x4 |
| Cafe | x10 |
| Autovermietung | x1 |
| Autowäsche | x1 |
| Zahnarzt | x5 |
| Bibliothek | x1 |
| öffentliche Parkplätze | x1 |
| Apotheke | x5 |
| Poststation | x2 |
| Restaurant | x26 |
| Schule | x1 |
| Allgemeinmediziner / Ärtzte | x15 |
| Ladestation (E-Car) | x7 |

Mitarbeiter kontaktieren
-
Markusstraße 31 in 09130 Chemnitz
