Kirchstraße 19 in 08064 Zwickau
Beschreibung
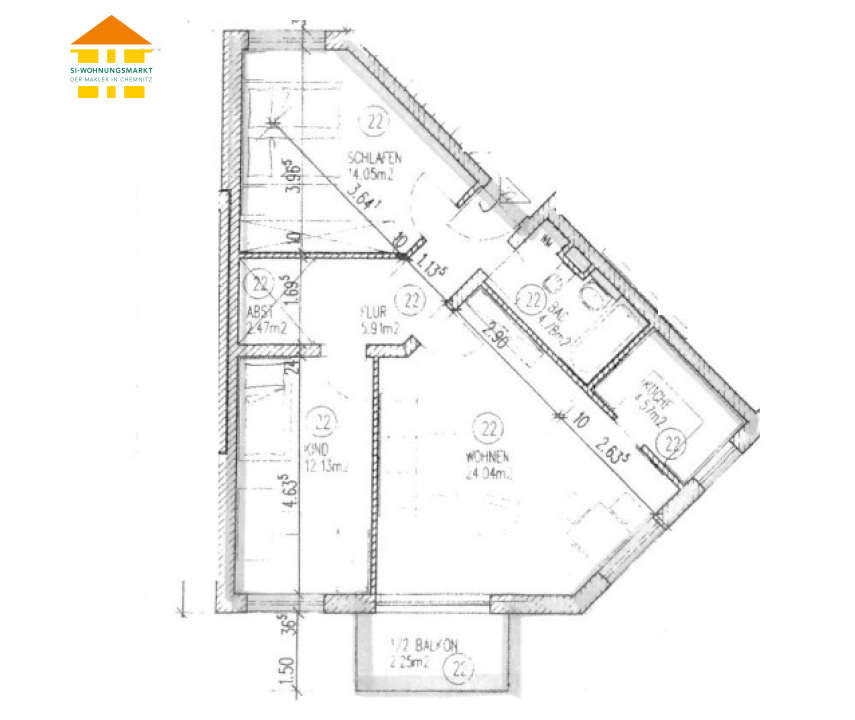
Kirchstraße 19 - WE 22 - 3-Raum-Wohnung in 08064 Zwickau
Zur Miete angeboten wird eine 3-Raum-Wohnung in Zwickau.
Folgende Merkmale kennzeichnen die Wohnung:
- praktischer Grundriss /
- offene Wohnküche mit Essbereich /
- Wohnzimmer mit Zugang zum Balkon /
- Kinderzimmer auch ideal als Arbeitszimmer nutzbar /
- Schlafzimmer von angenehmer Größe /
- Bad mit Wanne und WM-Anschluss /
- zeitloser Laminatboden /
- Stellplatz zugeordnet /
- abgeschlossenes Kellerabteil /
- Einrichtungen des täglichen Bedarfs in naher Umgebung /
- öffentliche Verkehrsmittel zu Fuß gut erreichbar /
| Objekt-Informationen | |
|---|---|
| Etage | erstes Obergeschoss (1. OG) |
| Räume | 3 Raum Wohnung |
| Kaltmiete | 385 Euro (5,49 / qm) |
| Nebenkosten | 180,00 Euro (2,57 / qm) |
| Warmmiete | 565,00 Euro |
| Grösse / qm | 70,20 |
| Kaution | 770,00 Euro |
| Parken | Aussenstellplatz (25 Euro / Monat) |
| Energieausweis | |
|---|---|
| Erstellungsdatum | bis 30.04.2014 |
| Ausweistyp | Verbrauchsausweis |
| Energieverbrauch | 134,00 kWh/qm*a |
| Effizienzklasse | --- |
| Energieträger | Gas |
| Baujahr | 1995 |
| In der näheren Umgebung (1km) | |
|---|---|
| öffentliche Parkplätze | x1 |
| Apotheke | x1 |
| Poststation | x2 |
| Allgemeinmediziner / Ärtzte | x1 |

Mitarbeiter kontaktieren
-
Kirchstraße 19 in 08064 Zwickau
