Heimgarten 108 in 09127 Chemnitz
Beschreibung
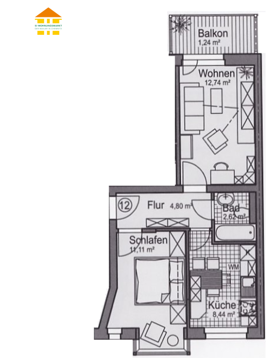
Heimgarten 108 - WE 12 - 2-Raum-Wohnung in 09127 Chemnitz
Zur Miete angeboten wird eine 2-Raum-Wohnung in Gablenz.
Folgende Merkmale kennzeichnen die Wohnung:
- praktischer Grundriss - keine Durchgangszimmer /
- zeitloser Laminatboden in allen Wohnräumen /
- helles und freundliches Wohnzimmer /
- Zugang zum Balkon über das Wohnzimmer /
- Küche mit genügend Platz für einen Essbereich /
- Bad mit Wanne /
- gemütliches Schlafzimmer mit Blick in den Innenhof /
- integrierte Deckenspots in Flur und Bad /
- abgeschlossenes Kellerabteil /
- begrünter Innenhof zur gemeinschaftlichen Nutzung /
- Einrichtungen des täglichen Bedarfs in naher Umgebung /
- öffentliche Verkehrsmittel zu Fuß gut erreichbar /
- allgemeiner Trockenboden /
Über den Standort
Das Objekt befindet sich im besonders bei Familien beliebten Chemnitzer Stadtteil Gablenz. Viele Grünanlagen, Kleingartenvereine und auch die schnelle Anbindung an ländliche Gegenden bieten einen idealen Ausgleich zum Stadtleben. Supermärkte, Restaurants, Arztpraxen und weitere Einrichtungen des täglichen Bedarfs sind in wenigen Gehminuten erreichbar. Mit Bus und Bahn erreicht man das Zentrum in weniger als 10 Minuten. Durch die direkte Anbindung an den Südring und die Zschopauer Straße gelangt man auch mit dem Auto zügig zur Autobahn.
Objekt-Informationen
Etage
Erdgeschoss (EG)
Räume
2 Raum Wohnung
Kaltmiete
298 € (7,28/m²)
Nebenkosten
106,00 € (2,60/m²)
Warmmiete
404,00 €
Wohnfläche
40,95 m²
Kaution
894,00 €
Energieausweis
Endenergieverbrauch
72,50 kWh/m²a
Erstellungsdatum
nicht benötigt
Ausweistyp
---
Energieträger
keine Angabe
Baujahr
1927
In der näheren Umgebung (1km)
Allgemeinmediziner / Ärtzte
15x vorhanden
Apotheke
1x vorhanden
Autowäsche
1x vorhanden
Bank
2x vorhanden
Bar
1x vorhanden
Cafe
1x vorhanden
Geldautomat
1x vorhanden
Ladestation (E-Car)
8x vorhanden
Poststation
1x vorhanden
Restaurant
13x vorhanden
Zahnarzt
3x vorhanden
öffentliche Parkplätze
4x vorhanden
Könnte Sie auch interessieren
- 51,50 qm 2 Raum Wohnung 0.45 km
- 52,36 qm 2 Raum Wohnung 0.18 km
- 51,20 qm 2 Raum Wohnung 0.29 km

Mitarbeiter kontaktieren
Verfügbar
01.02.2026
40,95 m²
Wohnfläche
2 Raum Wohnung
Zimmer
EG.
Etage
Warmmiete
404,00 €
QR-Code scannen
-
Heimgarten 108 in 09127 Chemnitz
Pendelzeit berechnen
Wie lange brauche ich zur Arbeit?