Henriettenstraße 77 in 09112 Chemnitz
Beschreibung
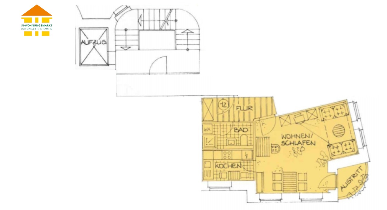
Henriettenstraße 77 - WE 12 - 1-Raum-Wohnung in 09112 Chemnitz
Zur Miete angeboten wird eine 1-Raum-Wohnung auf dem Kaßberg.
Folgende Merkmale kennzeichnen die Wohnung:
- praktischer Grundriss /
- Wohn - und Schlafzimmer mit Zugang zum Balkon /
- sonnige Küche mit Fenster/
- Bad mit Dusche und WM-Anschluss /
- zeitloser Laminatboden /
- abgeschlossenes Kellerabteil /
- allgemeiner Trockenboden /
- Aufzug im Treppenhaus /
- begrünter Innenhof zur gemeinschaftlichen Nutzung /
- Einrichtungen des täglichen Bedarfs in naher Umgebung /
- öffentliche Verkehrsmittel zu Fuß gut erreichbar /
Über den Standort
Das Mehrfamilienhaus befindet sich in einem der größten Gründerzeit- und Jugendstilviertel Deutschlands - dem Kaßberg. Der unter allen Bevölkerungsgruppen beliebte Stadtteil zählt seit 1991 als Flächendenkmal. Im Laufe der vergangenen 20 Jahre hat sich der Kaßberg zu dem Place-To-Be in Chemnitz entwickelt. Zahlreiche kleine, ausgefallene und hippe Cafés, sowie ansprechende, qualitätsstarke Restaurants sind das Aushängeschild des Kaßbergs.
Supermärkte, Arztpraxen, Apotheken und weitere Einrichtungen des täglichen Bedarfs sind fußläufig in wenigen Gehminuten zu erreichen. Das Chemnitzer Zentrum ist ebenfalls nicht weit entfernt.
Besonders Familien schätzen den Kaßberg auf Grund der breitgefächerten Auswahl von Bildungseinrichtungen.
Objekt-Informationen
Etage
zweites Obergeschoss (2. OG)
Räume
1 Raum Wohnung
Kaltmiete
255 € (5,50/m²)
Nebenkosten
120,00 € (2,60/m²)
Warmmiete
375,00 €
Wohnfläche
46,29 m²
Kaution
765,00 €
Fahrstuhl
Mietwohnung
Verfügbar
01.05.2026
46,29 m²
Wohnfläche
1 Raum Wohnung
Zimmer
2. OG.
Etage
Warmmiete
375,00 €
Energieausweis
Endenergieverbrauch
137,00 kWh/m²a
Erstellungsdatum
nicht benötigt
Ausweistyp
---
Energieträger
keine Angabe
Baujahr
1914
Könnte Sie auch interessieren
Rudolf-Marek-Straße 4 - WE 02 - 3-Raum-Wohnung in 09112 Chemnitz
65,51 m²
3 Raum Wohnung Zi.
555,00 € warm
0.32 km
Theodor-Lessing-Straße 17 - WE 18 - 2-Raum-Wohnung in 09112 Chemnitz
62,81 m²
2 Raum Wohnung Zi.
500,00 € warm
Weststraße 112 - WE 23 - 1-Raum-Wohnung in 09116 Chemnitz
47,20 m²
1 Raum Wohnung Zi.
363,00 € warm

Mitarbeiter kontaktieren
-
Henriettenstraße 77 in 09112 Chemnitz
Pendelzeit berechnen
Wie lange brauche ich zur Arbeit?