Casparistraße 1 in 09126 Chemnitz
Beschreibung
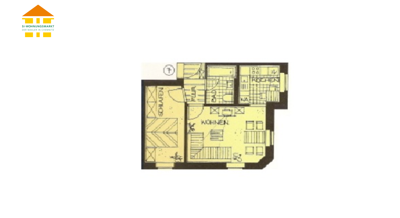
Casparistraße 1 - WE 07 - 2-Raum-Wohnung in 09126 Chemnitz
Zur Miete angeboten wird eine 2-Raum-Wohnung in Lutherviertel.
Folgende Merkmale kennzeichnen die Wohnung:
- praktischer Grundriss /
- geräumiges Wohnzimmer /
- sonnige Wohnküche mit WM-Anschluss /
- Schlafzimmer von angenehmer Größe /
- Bad mit Wanne /
- zeitloser Laminatboden /
- abgeschlossenes Kellerabteil /
- Aufzug im Treppenhaus /
- begrünter Innenhof zur gemeinschaftlichen Nutzung /
- Einrichtungen des täglichen Bedarfs in naher Umgebung /
- öffentliche Verkehrsmittel zu Fuß gut erreichbar /
Über den Standort
Das Lutherviertel in Chemnitz zählt zu den gefragten, innenstadtnahen Wohnlagen der Stadt und verbindet urbanes Leben mit gewachsener Wohnqualität. Der Stadtteil ist geprägt von gepflegten Altbauten, ruhigen Nebenstraßen und einer angenehmen Nachbarschaftsstruktur. Einkaufsmöglichkeiten, Ärzte, Schulen und gastronomische Angebote befinden sich in fußläufiger Entfernung. Die sehr gute Anbindung an den öffentlichen Nahverkehr sowie die schnelle Erreichbarkeit der Innenstadt und der Autobahnen unterstreichen die Attraktivität der Lage. Grünflächen und Naherholungsmöglichkeiten sorgen zusätzlich für eine hohe Lebensqualität. Insgesamt bietet das Lutherviertel eine nachhaltige, wertstabile Lage mit hoher Nachfrage bei Mietern und Kapitalanlegern.
Objekt-Informationen
Etage
erstes Obergeschoss (1. OG)
Räume
2 Raum Wohnung
Kaltmiete
225 € (5,14/m²)
Nebenkosten
114,00 € (2,60/m²)
Warmmiete
339,00 €
Wohnfläche
43,85 m²
Kaution
675,00 €
Fahrstuhl
Mietwohnung
Verfügbar
01.06.2026
43,85 m²
Wohnfläche
2 Raum Wohnung
Zimmer
1. OG.
Etage
Warmmiete
339,00 €
Energieausweis
112 kWh/m²a
0
25
50
100
150
200
250
>250
Endenergieverbrauch
112 kWh/m²a
Erstellungsdatum
ab 01.05.2014
Ausweistyp
Verbrauchsausweis
Energieträger
Gas
Baujahr
1912
Könnte Sie auch interessieren
0.41 km
Lutherstraße 16 - WE 10 - 1-Raum-Wohnung in 09126 Chemnitz
28,83 m²
1 Raum Wohnung Zi.
245,00 € warm
Lutherstraße 34 - WE 01 - 3-Raum-Wohnung in 09126 Chemnitz - Verkauf
67,16 m²
3 Raum Wohnung Zi.
65.000,00 €
Lutherstraße 30 - WE 14 - 1-Raum-Wohnung in 09126 Chemnitz
34,62 m²
1 Raum Wohnung Zi.
300,00 € warm

Mitarbeiter kontaktieren
-
Casparistraße 1 in 09126 Chemnitz
Pendelzeit berechnen
Wie lange brauche ich zur Arbeit?