Frankenberger Straße 108 in 09131 Chemnitz
Beschreibung
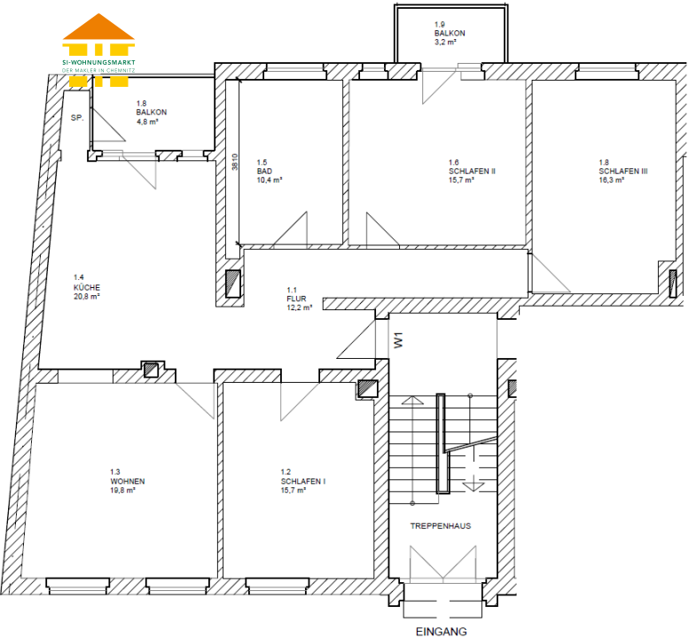
Frankenberger Straße 108 - WE 01 - 4-Raum-Wohnung in 09131 Chemnitz
In dem komplett sanierten Mehrfamilienhaus auf der Frankenberger Straße befinden sich 7 moderne und großzügige Wohnungen. Die hellen und freundlichen Wohnungen lassen das gesamte Haus in neuen Glanz erstrahlen. Von einladenden 2-Raum-Wohnungen, bis hin zu großzügigen und familienfreundlichen Wohnungen, wurde das Objekt auf den neusten Stand gebracht.
Folgende Merkmale kennzeichnen die Wohnung:
- praktischer Grundriss - keine Durchgangszimmer /
- Schlafzimmer mit Zugang zum Balkon /
- großzügiges Wohnzimmer /
- offene Wohnküche mit Zugang zum Balkon /
- Küche mit genügend Platz für einen Essbereich /
- Einbauküche inkl. allen Geräten /
- alle Balkone mit hofseitiger Ausrichtung /
- Kinderzimmer auch ideal als Arbeitszimmer nutzbar /
- 2 Schlafzimmer mit Hofseitiger Ausrichtung /
- Tageslichtbad mit Dusche/Wanne und WM-Anschluss /
- integrierte Deckenspots in Flur und Bad /
- zeitloser Vinylboden /
- abgeschlossenes Kellerabteil /
- begrünter Innenhof zur gemeinschaftlichen Nutzung /
- Einrichtungen des täglichen Bedarfs in naher Umgebung /
- öffentliche Verkehrsmittel zu Fuß gut erreichbar /
| Objekt-Informationen | |
|---|---|
| Etage | Erdgeschoss (EG) |
| Räume | 4 Raum Wohnung |
| Kaltmiete | 750 Euro (6,53 / qm) |
| Nebenkosten | 320,00 Euro (2,79 / qm) |
| Warmmiete | 1070,00 Euro |
| Grösse / qm | 114,9 |
| Kaution | 1500,00 Euro |
| Parken | kein Stellplatz ( Euro / Monat) |
| Einbaukueche |
| Energieausweis | |
|---|---|
| Erstellungsdatum | ab 01.05.2014 |
| Ausweistyp | Verbrauchsausweis |
| Energieverbrauch | kWh/qm*a |
| Effizienzklasse | G (>= 250 kWh/m².a) |
| Energieträger | Gas |
| Baujahr | 1920 |
| In der näheren Umgebung (1km) | |
|---|---|
| Bank | x1 |
| Zahnarzt | x2 |
| öffentliche Parkplätze | x6 |
| Apotheke | x1 |
| Restaurant | x5 |
| Allgemeinmediziner / Ärtzte | x3 |
| Ladestation (E-Car) | x2 |
Könnte Sie auch interessieren
- 91,39 qm 1 Raum Wohnung 0.41 km

Mitarbeiter kontaktieren
-
Frankenberger Straße 108 in 09131 Chemnitz
