Neukirchner Straße 23b in 09116 Chemnitz
Beschreibung
Neukirchner Straße 23b - Reihenhaus - in 09116 Chemnitz - Verkauf
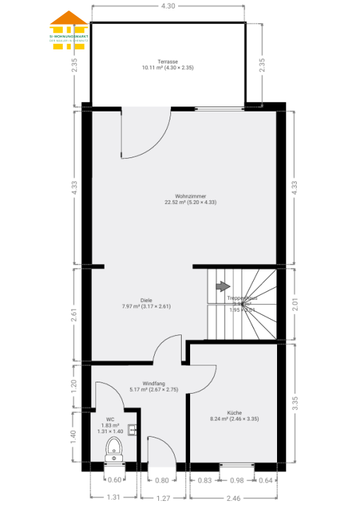
Zum Verkauf steht dieses charmante Reihenendhaus in der ruhigen Neukirchner Straße 23b in Chemnitz, das mit einer Wohnfläche von 141,13 m² auf zwei Geschossen sowie einem voll ausgebauten Dachgeschoss viel Platz für die ganze Familie bietet. Das vollständig unterkellerte Haus steht aktuell leer und ist somit sofort bezugsbereit. Auf dem 236 m² großen Grundstück befindet sich ein gepflegter Garten, der zum Entspannen, Spielen und gemütlichen Beisammensein im Freien einlädt. Das Erdgeschoss überzeugt mit einem großzügigen, ca. 30 m² großen Wohnzimmer, das dank seiner großen Fensterfront lichtdurchflutet ist und als Herzstück des Hauses eine besonders einladende Atmosphäre schafft. Von hier aus gelangen Sie direkt auf die Terrasse, die sonnige Stunden im Freien möglich macht. Die Küche ist optimal geschnitten und bietet viel Platz für gemeinsame Koch- und Essmomente, während ein praktisches Gäste-WC den Wohnkomfort abrundet. Eine elegante Holztreppe verbindet alle Etagen und sorgt für einen harmonischen Übergang zwischen den Wohnbereichen. Im Obergeschoss erwarten Sie ein geräumiges Elternschlafzimmer sowie zwei ähnlich große Kinderzimmer, die über einen Balkon einen schönen Blick in den Garten bieten. Das Hauptbadezimmer ist mit Tageslicht, einer Badewanne und einer Dusche versehen. Das voll ausgebaute Dachgeschoss bietet einen großen, offenen Raum, der sich flexibel als Arbeitszimmer, Hobbyraum, Studio oder zusätzliches Schlafzimmer nutzen lässt und somit vielfältige Möglichkeiten für individuelle Wohnträume eröffnet. Der Keller überzeugt mit einem großen Vorraum sowie zwei weiteren Räumen, die vielseitig genutzt werden können. Einer der Kellerräume dient als Heizraum, der andere bietet praktischen Stauraum. In den Wohnräumen ist aktuell Teppichboden verlegt, während Küche, Bad, Gäste-WC und der Vorraum im Keller mit Fliesen ausgestattet sind. Außenjalousien an allen Fenstern sorgen für angenehme Lichtregulierung und Privatsphäre. Abgerundet wird dieses attraktive Angebot durch eine Garage sowie einen praktischen Außenstellplatz direkt vor dem Haus. Die Lage in einer schönen, ruhigen Wohnsiedlung bietet ideale Bedingungen für Familien: Schulen, Einkaufsmöglichkeiten und öffentliche Verkehrsmittel sind gut erreichbar, wodurch Komfort und Lebensqualität optimal miteinander verbunden werden. Dieses Haus vereint durchdachte Raumaufteilung, helle, freundliche Wohnatmosphäre und flexible Nutzungsmöglichkeiten aller Etagen zu einem idealen Zuhause für die ganze Familie. Bei dem Objekt sind keine Altlasten eingetragen. Der Energieausweis befindet sich aktuell noch in Erstellung, wird jedoch bei Besichtigung vorgelegt.
Über den Standort
Objekt-Informationen
Energieausweis

Mitarbeiter kontaktieren
-
Neukirchner Straße 23b in 09116 Chemnitz
Pendelzeit berechnen
Wie lange brauche ich zur Arbeit?