Fürstenstraße 45 in 09130 Chemnitz
Beschreibung
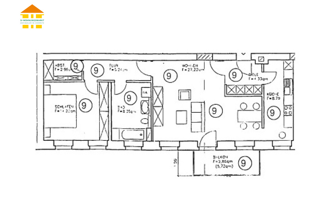
                    Fürstenstraße 45 - WE 09 - 2-Raum-Wohnung in 09130 Chemnitz                    
                    
Mieten Sie eine schöne 2-Raum-Wohnung unweit der Chemnitzer Innenstadt.
Folgende Merkmale kennzeichnen die Wohnung:
- praktischer Grundriss
 - offene Wohnküche mit Essbereich /
 - Wohnzimmer mit Zugang zum Balkon /
 - Schlafzimmer von angenehmer Größe /
 - Tageslichtbad mit Dusche und WM-Anschluss /
 - interner Abstellraum /
 - abgeschlossenes Kellerabteil /
 - Einrichtungen des täglichen Bedarfs in naher Umgebung /
 - öffentliche Verkehrsmittel zu Fuß gut erreichbar /
 
| Objekt-Informationen | |
|---|---|
| Etage | zweites Obergeschoss (2. OG) | 
| Räume | 2 Raum Wohnung | 
| Kaltmiete | 444 Euro (6,00 / qm) | 
| Nebenkosten | 177,00 Euro (2,39 / qm) | 
| Warmmiete | 621,00 Euro | 
| Grösse / qm | 73,98 | 
| Kaution | 888,00 Euro | 
| Fahrstuhl | 
| Energieausweis | |
|---|---|
| Erstellungsdatum | nicht benötigt | 
| Ausweistyp | --- | 
| Energieverbrauch | kWh/qm*a | 
| Effizienzklasse | --- | 
| Energieträger | keine Angabe | 
| Baujahr | 
| In der näheren Umgebung (1km) | |
|---|---|
| Geldautomat | x6 | 
| Bank | x6 | 
| Bar | x5 | 
| Cafe | x7 | 
| Autovermietung | x1 | 
| Autowäsche | x2 | 
| Zahnarzt | x6 | 
| Bibliothek | x1 | 
| öffentliche Parkplätze | x2 | 
| Apotheke | x3 | 
| Restaurant | x22 | 
| Schule | x1 | 
| Allgemeinmediziner / Ärtzte | x18 | 
| Ladestation (E-Car) | x6 | 
Könnte Sie auch interessieren
- 52,40 qm 2 Raum Wohnung 0.24 km
 
- 46,20 qm 2 Raum Wohnung 0.16 km
 
- 75,00 qm 3 Raum Wohnung 0.05 km
 

Mitarbeiter kontaktieren
- 
                            
Fürstenstraße 45 in 09130 Chemnitz
 
                    
                    
                    
                    
                    
                    
                    
                    
                    
                    
                    
                    
                    
                    